LINEで通知をご希望の方
価格:4,980万円
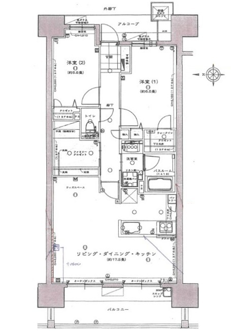
オール電化 エコキュート IHクッキングヒーター システムキッチン ディスポーザー 食器洗浄乾燥機 浴室換気乾燥機 TVモニター付インターホン 温水洗浄便座 ウォークインクローゼット オートロック 宅配ボックス 駐輪場 バイク置き場 ペット飼育可(飼育細則あり)
※学校区は住所から自動判定したものであり、保証できる情報ではございません。正確な学校区はお問い合わせ下さい。
お問い合わせフォームはこちら
※地図上の「対象地」は「広島県広島市中区住吉町16-24」の場所を指しています。実際の場所ではない場合がございます。詳しくはお問い合わせください。
総額:0万円(税込)
※上記支払例の借入条件:金利0.675%、借入総額万円、借入期間35年
頭金0円 / ボーナス払い0円
月々:円
参考価格:0万円(税込)
※外構工事、その他購入に関わる諸費用は含まれておりません。
※価格は参考価格であり、実際の価格はリノベーション内容・面積によって異なります。詳しくはお問い合わせください。