LINEで通知をご希望の方
価格:2,280万円
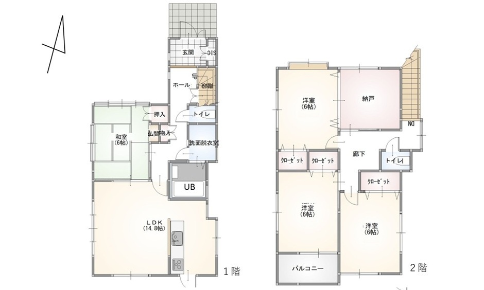
2025年11月リフォーム済み:外壁・屋根塗装、キッチン・ トイレ・洗面台交換、クロス張替(和室天井除く)、 床材フロアタイル上張(階段除く)、クッションフロア交換 (洗面・トイレ)、畳表替え
※学校区は住所から自動判定したものであり、保証できる情報ではございません。正確な学校区はお問い合わせ下さい。
お問い合わせフォームはこちら
※地図は「広島県広島市佐伯区利松二丁目」の不動産所在地付近を表示しています。実際の場所はお問い合わせください。
総額:0万円(税込)
※上記支払例の借入条件:金利1.025%、借入総額万円、借入期間35年
頭金0円 / ボーナス払い0円
月々:円
参考価格:0万円(税込)
※外構工事、その他購入に関わる諸費用は含まれておりません。
※価格は参考価格であり、実際の価格はリノベーション内容・面積によって異なります。詳しくはお問い合わせください。