LINEで通知をご希望の方
価格:3,580万円
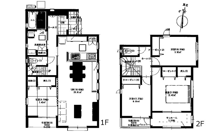
ZEH水準省エネ住宅 断熱等級5 外壁光セラ(KMEW) 制振ダンパー(住友ゴムMAMORY) フラット35S(金利Aプラン)対応 瑕疵担保責任保険(まもりすまい保険) オール電化 エコキュート IHクッキングヒーター 食器洗乾燥機 カップボード 浴室乾燥機能 1・2階ウォシュレットトイレ オールLow-Eペアガラス アルミ樹脂複合サッシ 玄関ドア電子錠 2~3台駐車可能 外構付
※学校区は住所から自動判定したものであり、保証できる情報ではございません。正確な学校区はお問い合わせ下さい。
お問い合わせフォームはこちら
※地図は「広島県東広島市八本松南五丁目」の不動産所在地付近を表示しています。実際の場所はお問い合わせください。
総額:0万円(税込)
※上記支払例の借入条件:金利1.025%、借入総額万円、借入期間35年
頭金0円 / ボーナス払い0円
月々:円
参考価格:0万円(税込)
※外構工事、その他購入に関わる諸費用は含まれておりません。
※価格は参考価格であり、実際の価格はリノベーション内容・面積によって異なります。詳しくはお問い合わせください。