LINEで通知をご希望の方
価格:3,690万円
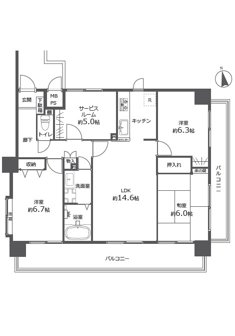
2026年4月リフォーム完了:システムキッチン・ユニットバス・洗面化粧台・洗濯機防水パン・ 温水洗浄機能付トイレ・建具・玄関収納新規交換、浴室乾燥機・LEDセンサーライト・ LEDダウンライト新規設置、フローリング・クロス張替、ガス給湯器・カーテンレール交換、 ハウスクリーニング他 新耐震基準 追炊機能 浴室換気乾燥機能 2面バルコニー81㎡超えの角住戸 オートロック 住宅ローン控除・フラット35適合
※学校区は住所から自動判定したものであり、保証できる情報ではございません。正確な学校区はお問い合わせ下さい。
お問い合わせフォームはこちら
※地図上の「対象地」は「広島県広島市安佐南区西原六丁目18-21」の場所を指しています。実際の場所ではない場合がございます。詳しくはお問い合わせください。
総額:0万円(税込)
※上記支払例の借入条件:金利1.025%、借入総額万円、借入期間35年
頭金0円 / ボーナス払い0円
月々:円
参考価格:0万円(税込)
※外構工事、その他購入に関わる諸費用は含まれておりません。
※価格は参考価格であり、実際の価格はリノベーション内容・面積によって異なります。詳しくはお問い合わせください。